Let our team help you select the right product
Talk to one of our Door Hardware specialists, we can help you with all your Door Hardware needs from the ground up.
Let us help with your next Door Hardware project.
Specifications
cUL/UL listed for 3 hour fire rated doors
UL 10B and 10C fire tests for door assemblies
ANSI/BHMA A156.3
Finishes: US3, US10B and US26D
Features
Simple Door preparation
Easy Installation
Requires two (2) 1-1/8” Diameter holes and simple rectangular faceplate preps
Dual use for metal and solid wood doors
No cut outs on inactive door
Non-handed
Ideal for wood veneer doors as smaller profile adds stability to the door
Use:
These bolts are installed at the top and bottom of fire rated doors on the inactive leaf
Top and bottom bolts will automatically retract when the active door is opened
UL listed for 3 hour fire rated Universal Automatic Flush Bolts

Genaral Information:
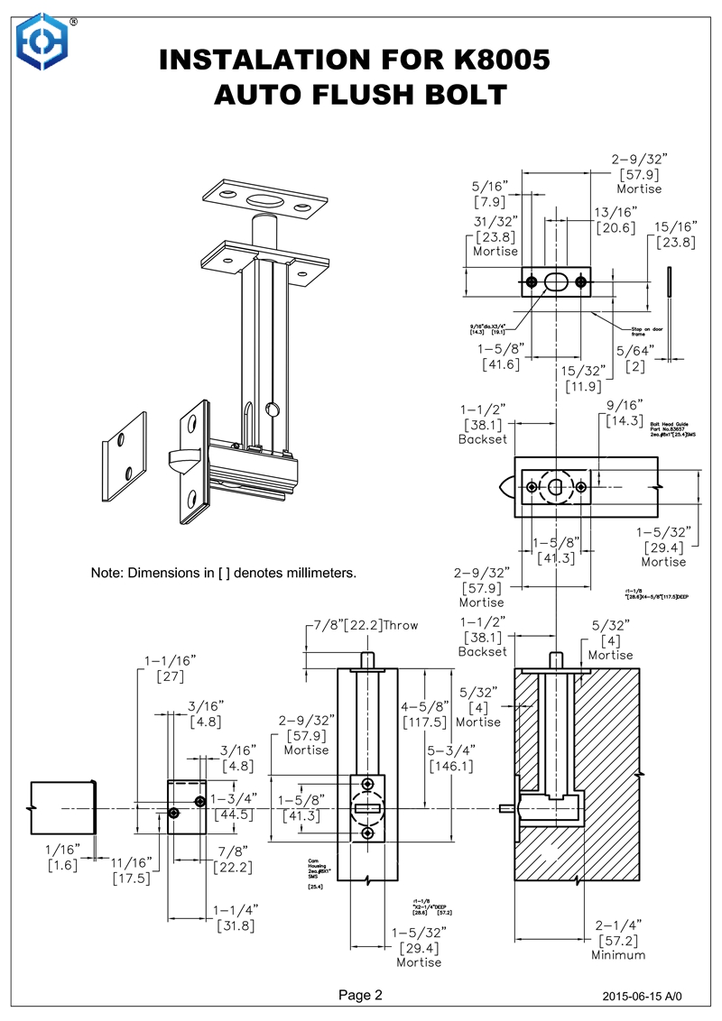
The K8005 Automatic Flush Bolt uses a standard latch bolt prep fixture with 1-1/8"[28.6]diameter drill bit.For beveled doors,the face of the K8005 pivots,making the bolt suitable for all door edges.
Trouble Shooting:
Maintenance Tips:
1)1.If the operation is stiff or the cam sticks,the drilled holes are not quite perpendicular and/or do not meet adequately.In this case,it may be necessary to break the inside edge of the intersecting holes with a smaller drill,or a round file.
2)If breaking the edge does not improve operation check to see that the two assemblies are mated correctly as stated in Step 2 of the installation instructions.
The K8005 will provide years of trouble free operation.Periodic greasing with a moly or lithium based grease will extend the life of the K8005.
Preparation Tips:
1.Do not exceed 5/32"[4]depth when mortising the two rectangles.
Greater depths will hinder the mating of the two assemblies.
2.The 1-1/8"[28.6]holes must be drilled perpendicular to the door edges
as well as parallel with the door faces.
3.Undercut Doors:
3.1 Prep are top bolt as suggested.
3.2 Prep only vertical mortise of bottom bolt.
3.3 Undercut door to required amount.
3.4 Redrill vertical mortise the same amount as undercut.
3.5 Prep horizontal mortise per template.
Bolt Installation:
1.Remove Tie and install Bolt Housing.
2.Install Cam Housing into grooves of Bolt Housing.Secure Trim Plate
with 2 ea.#8 APS.
Note:If Cam Housing rotates,it is not engaged into the Bolt Housing.
3.Adjust Bolt Head 0"to 1/2"[12.7]above Bolt Head Guide.Secure with
2 ea.#8 APS.


In order to make our products more competitive and enhance customers confidence, we have obtained the following product quality certifications:
UL Certificated R41359 and CE for door closer,
UL Certificated R41361 ,SA46258 for panic exit device,
UL Certificated R41383 and EN1935:2002 for Hinges,
UL Certificated R41710 for American and lock,
CE for Mortise lock,
EN1906:2012 for Handles,
EN12209:2016 for Locks and so on.
Latest News
28 Nov. 2025
Ec Hardware The 46th Big 5 Global Expo in Dubai07 Nov. 2025
What is a Sliding Door System?Hot Products
Let our team help you select the right product
Talk to one of our Door Hardware specialists, we can help you with all your Door Hardware needs from the ground up.
Let us help with your next Door Hardware project.